Normala Rogallo-glisilo de la unua generacio kun fleksebla alotegaĵo servas hodiaŭ nur por elementa trejnado de flugado per pendoglisiloj. Ĝiaj flugperformancoj, kompare kun tiuj de la performancoj de modernaj pendoglisiloj de la dua kaj la tria generacioj, estas nur mevaloraj. El vidpunkto de aerodinamiko tamen ĝi estas certagrade interesa. Kiel montras la evoluo de kurbo de kvaronaj kordlongoj de ĉi tiu alo, temas pri la alo kun tre pozitiva sageco, kun tre eta svelteco. Ĝi surteriĝas laŭ nekutime granda incidangulo. Ĝi elstaras pro malgranda ŝovo de aerodinamika centro en la sfero inter malaltaj kaj altaj rapidoj, ĝia regeblo estas bona kaj pro eta svelteco ne estas problemoj ankaŭ ĉe ĝia dimensiado. Efike de alta sageco ĝi ne tendencas al aŭtorotaciado post perdo de levoforto. Kreinto de deltaalo kun rigida tegaĵo estas antaŭmilita aerodinamikisto, konstruktoro de multaj altperformancaj senmotoraj firmodinoj kaj fakulo pri altaj rapidoj, d-ro A. Lippisch. La supre menciitaj pozitivaj ecoj de deltaalo validas nur por tute rigida alo.
Deltaalon kun fleksebla tegaĵo projektis por specialaj taskoj en kosmonaŭtiko usonano Rogallo. Tiun ĉi alon oni nun uzas por pendoglisado. Ĉe ĝi aperas tri praktike eblaj kaj el la vidpunkto de aerodinamiko tute diferencaj reĝimoj de flugo. Ĉe etaj incidanguloj (sub 10°) en la tuta regiono de tegaĵo aperas vibroj, kiuj malebligas kreadon de levoforto. La fleksebla tegaĵo flirtas simile kiel flago sur masto (de tie la esprimo flatri el la germana flattern). Ĝi estas tre danĝera fluga fazo, dum kiu estas la glisilo tute neregebla kaj descendas per rapido ĉirkaŭ 100 km/h sub angulo ĉirkaŭ 60° teren. Multaj pendoglisistoj pagis tiun ĉi konstruktan nesufiĉon per sia vivo.
Se deltaalo troviĝas sub pliigita incidangulo, flatras jam nur aloekstremoj troviĝantaj ankoraŭ sub negativaj incidanguloj, kiuj la flatron elvokas, nome dank' al t.n. tunelo, kiun ĉiu aloduono formas. Resto de la alo, ĉirkaŭfluata sub pozitiva incidangulo, jam perfekte portas. Ĉe plue pliigita incidangulo portas jam la tuta alo estante alblovata sub pozitiva incidangulo. Nur tiu ĉi reĝimo de flugo estas ĉe rogallo utiligebla. Diference de aliaj valoj, ĉe kiuj fariĝas ekvilibraj la premdiferencoj super kaj sub alo en la regiono de aloekstrema profilo, ĉe la deltaalo fariĝas ekvilibraj la premdiferencoj laŭ la tuta alflua eĝo, kio manifestiĝas per specifa vortico. Ĉe plua pliigo ĝis maksimuma ebla incidangulo deŝiriĝas flulinioj en la regiono de centra aloparto, sed ĝiaj ekstremaj partoj, kiuj estas ankoraŭ influe de la tunelo prifluataj sub malpliigita incidangulo, ankoraŭ portas. Malgraŭ tio, pro la "malpliigo" de portsurfaco, la alo ekstaŭlas kaj la totala aerodinamika forto estas donita plejparte per aerrezista komponento simile kiel okaze de paraŝuto.
La plej facila vojo por ricevi flugan polaron de deltaalo estas elkalkulo el mezurita polaro de rapidoj. Ĉi tiun polaron ne estas necese tramezuri tutan, tio estus tre elspeza kaj temporaba. Sufiĉas mezuri almenaŭ tri ĝiajn karakterizajn punktojn. Sed estas nepre necese rekalkuli la mezuritajn valorojn, kun konsidero de momentaj premo kaj temperaturo de atmosfero, je kondiĉoj de internacia norma atmosfero. La mezurado devas esti plurfoja sinsekve kaj el la mezuraj valoroj oni prenu la mezvalorojn. Ĉar temas nur pri tri karakterizaj punktoj, la mezurado ne estas tro multekosta.
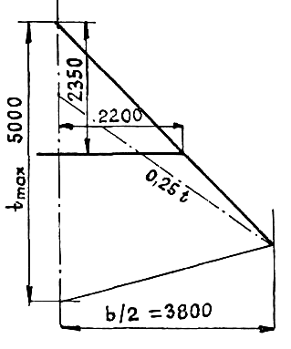
Oni konsideru normalan rogallon kun kuŝe pendanta piloto je suma ala surfaco 5 = 5,0 · 3,8 = 19m2 (fig. 1).
Fig. 1: Plano de normala Rogallo-glisilo
Sageco de la alflua eĝo estu 45°, maso de vaka glisilo 20 kg, maso de la piloto 80 kg, suma maso do estu 100 kg. La ŝarĝo je ala surfacunuo estas G/S = 100/19= 5,26 kg/m2.
Dum flugo en libera atmosfero (sen interrilato kun tero) estis mezurita minimuma avanca rapido vx, min = 8 m/s = 28,8 km/h ĉe minimuma descendivo vy = 3,5 m/s. La minimuma descendivo vy, min = 2,15 m/s estas mezurita ĉe vx = 10,3 m/s = 37 km/h. Ĉe vx = 16 m/s = 57,5 km/h estas mezurita descendivo 5 m/s. Por ĉi valoroj eblas elkalkuli en tab. 1 valorojn de koeficientoj de levoforto kaj aerrezisto, t.e. punktojn de fluga polaro. Por ĉi tio servas ankaŭ la skemo en fig. 2, montranta la deltaalon dum descendo. Laŭ la elkalkulitaj punktoj kaj bazaj tanĝantoj eblas desegni parabolan kurbon en ĝia tuta evoluo. Tiu ĉi kurbo (fig. 3) estas limigita: per vertikala tanĝanto en la punkto vx, min per horizontala tanĝanto en la punkto vy, min per tanĝanto determinanta optimuman descendivon kaj per tanĝanto determinanta maksimuman allaseblan flugrapidon el vidpunkto de flatro. El la polaro de rapidoj tiel ĉi ricevita eblas per kalkulo determini flugan polaron en tab. 3. La fluga polaro estas montrita en fig. 4. Sur ĝi eblas trovi la tri priskribitajn flugfazojn kaj ĝian utiligeblan parton.
Fig. 2: Ekvilibrita flugo per la glisilo — efiko de blovpuŝo.
Fig. 3: Konstruo de polaro de rapidoj el mezuritaj bazaj punktoj.
Fig. 4: Fluga polaro
vx [km/h] | 28,8 | 37 | 57,5 |
vx [m/s] | 8,0 | 10,3 | 16,0 |
vy [m/s] | 3,5 | 2,15 | 5,0 |
ε = Vy/Vx | 0,436 | 0,208 | 0,313 |
k = 1/ε | 2,29 | 4,81 | 3,19 |
1+ε | 1,19 | 1,043 | 1,098 |
![]() | 1,09 | 1,02 | 1,047 |
![]() | 64 | 106 | 256 |
![]() | 12,3 | 4,61 | 25 |
![]() | 76,3 | 110,6 | 281 |
![]() | 4,77 | 6,0 | 17,6 |
![]() | 1,1 | 0,76 | 0,3 |
![]() | 1,01 | 0,746 | 0,286 |
![]() | 0,440 | 0,155 | 0,0895 |
vx [km/h] | 30 | 35 | 40 | 45 | 50 | 55 | 60 |
vx [m/s] | 8,33 | 9,7 | 11,1 | 12,5 | 13,9 | 15,3 | 16,66 |
vy [m/s] | 2,7 | 2,16 | 2,2 | 2,77 | 3,45 | 4,4 | 5,75 |
ε = vy/vx | 0,324 | 0,223 | 0,198 | 0,222 | 0,248 | 0,288 | 0,345 |
k = 1/ε | 3,09 | 4,29 | 5,05 | 4,51 | 4,03 | 3,47 | 2,90 |
1 + ε2 | 1,105 | 0,0497 | 1,039 | 1,0493 | 1,0615 | 1,083 | 1,119 |
![]() | 1.05 | 1,025 | 1,019 | 1,022 | 1,03 | 1,04 | 1,058 |
![]() | 69,5 | 94 | 123,5 | 156,5 | 193 | 234 | 277 |
![]() | 7,3 | 4,66 | 4,84 | 7,65 | 11,9 | 19,4 | 33,0 |
v2 | 76,8 | 98,66 | 128,34 | 164,2 | 204,9 | 253,8 | 310,0 |
q | 4,80 | 6,17 | 8,00 | 10,25 | 12,8 | 15,8 | 19,5 |
c | 1,095 | 0,853 | 0,659 | 0,514 | 0,409 | 0,338 | 0,27 |
cy, | 1,04 | 0,833 | 0,645 | 0,501 | 0,397 | 0,320 | 0,254 |
cx | 0,338 | 0,186 | 0,128 | 0,111 | 0,099 | 0,092 | 0,088 |
Por desegno de levoforta kurbo de la deltaalo necesas elkalkuli ĝian deklinon. Por tio oni uzas formulon validan por tre etaj alosveltecoj kaj samtempe konsideras la alosagecon. kalkulon de la deklino kaj evoluon de la levoforta kurbo sur fig. 5.
Kiel ĉiun firmodinon, ankaŭ rogallon eblas anstataŭigi per jenaj karakterizaj elementoj (v. fig. 2):
Fig. 5: Deklino de levoforta kurbo.
SEKCO | 8 | 7 | 6 | 5 | 4 | 3 | 2 | 1 |
---|---|---|---|---|---|---|---|---|
cy1t[m] | 2,62 | 2,6 | 2,73 | 2,59 | 2,27 | 2,03 | 1,71 | 1,0 |
(cy1)mez[m] | 2,6 | 2,65 | 2,72 | 2,43 | 2,16 | 1,9 | 1,5 | 0,72 |
Δη [m] | 0,775 | 0,745 | 0,69 | 0,6 | 0,49 | 0,36 | 0,28 | 0,03 |
(cy1t)mezΔη | 2,02 | 1,98 | 1,88 | 1,46 | 1,06 | 0,685 | 0,42 | 0,021 |
Σ(cy1t)mezΔη | 9,527 | 7,507 | 5,527 | 3,647 | 2,187 | 1,127 | 0,442 | 0,022 |
x[m] | 1,29 | 1,77 | 2,28 | 2,75 | 3,2 | 3,56 | 3,81 | 3,97 |
cy1 tx [m2] | 3,38 | 4,6 | 6,22 | 7,13 | 7,27 | 7,22 | 6,3 | 3,97 |
(cy1 tx)mex | 3,9 | 5,3 | 6,6 | 7,1 | 7,2 | 6,9 | 5,5 | 3,0 |
(cy1 tx)mex Δη | 3,02 | 3,95 | 4,55 | 4,26 | 3,53 | 2,48 | 1,54 | 0,09 |
Σ(cy1 tx)mexΔη | 23,42 | 20,4 | 16,45 | 11,90 | 7,64 | 4,11 | 1,63 | 0,09 |
η | 0 | 0,775 | 1,52 | 2,21 | 2,81 | 3,3 | 3,66 | 3,89 |
Cy1 tη, | 0 | 2,02 | 4,14 | 5,71 | 6,38 | 6,7 | 6,26 | 3,89 |
(cy1 tn)mex | 0,8 | 3,0 | 4,9 | 6 | 6,45 | 6,5 | 5,35 | 2,6 |
(cy1 tη)mexΔη | 0,620 | 2,23 | 3,38 | 3,6 | 3,16 | 2,34 | 1,5 | 0,078 |
Σ(Cy1 tη)mex Δη | 16,917 | 16,297 | 14,067 | 10,687 | 7,087 | 3,927 | 1,578 | 0,078 |
Kontrolo: | ![]() |
Koordinatoj de aerodinamika centro: | ![]() |
![]() |
Bazan dislokiĝon de levoforto laŭ ala enverguro eblas determini per proksimuma metodo, por statikaj celoj tute sufiĉa. Tiu ĉi dislokiĝo estu difinita per mezvaloro inter elipsa dislokiĝo kaj dislokiĝo proporcia al la plandesegna formo. Por la deltaalo el fig. 6. kun nelineara evoluo de kordoj estas donita la baza dislokiĝo en fig. 7, supoze, ke temas pri alo sen sageco. Okaze de alosageco γ = 34° la dislokiĝo transŝoviĝas aloekstremen, kio estas desegnita en fig. 8. La totala baza dislokiĝo de aerfortoj estas en fig. 9. Se oni deziras ricevi dislokiĝon de aerfortoj laŭ aloenverguro por ajna flugreĝimo ekster sfero de flatro, oni multobligu la bazan dislokiĝon per donita koeficiento de levoforto. Al tio oni algebre adiciu la nulan dislokiĝon.
Fig. 6: Rogallo kun ĝenerala evoluo de kordlongoj.
Fig. 7: Evoluo de normala baza dislokiĝo sen efiko de alosageco.
Fig. 8: Efiko de alosageco je normala dislokiĝo laŭ Multhopp.
Fig. 9: Evoluo de normala dislokiĝo kun efiko de alosageco.
Koordinatoj de aerodinamika alocentro laŭ ĝia enverguro kaj en la direkto de kordlongoj estas determinitaj kiel koordinatoj de pezocentro de la portsurfaco ĉe baza dislokiĝo de aerfortoj. En tab. 3 estas kalkulitaj momantaj kurboj de la baza dislokiĝo rilate al la aksoj x kaj y, kiuj estas desegnitaj en fig. 10.
Por ĝenerala evoluo de kordlongoj necesas kalkuli longon de meza aerodinamika kordo laŭ la formulo en fig. 11. La kalkulo estas plenumita en tab. 4.
Fig. 10: Momantaj kurboj de normala dislokiĝo al koordinataj aksoj.
Fig. 11: Evoluo de kordoj kaj de iliaj kvadratoj laŭ aloenverguro.
SEKCO | 8 | 7 | 6 | 5 | 4 | 3 | 2 | 1 | |
---|---|---|---|---|---|---|---|---|---|
η/b/2 | 0 | 0,1951 | 0,3827 | 0,5556 | 0,7071 | 0,8315 | 0,9239 | 0,9808 | |
η[m] | 0 | 0,775 | 1,52 | 2,21 | 2,81 | 3,3 | 3,66 | 3,89 | |
t[m] | 5,165 | 3,98 | 2,95 | 2,04 | 1,3 | 0,74 | 0,34 | 0,1 | |
t2 [m2] | 26,6 | 15,85 | 8,7 | 4,16 | 1,69 | 0,548 | 0,116 | ~' 0,01 | |
Δη [m] | 0,775 | 0,745 | 0,69 | 0,60 | 0,49 | 0,36 | 0,28 | ~' 0,03 | |
tmez [m] | 4,56 | 3,45 | 2,46 | 1,65 | 1,02 | 0,54 | 0,19 | 0,02 | ΣtmezΔη |
tmezΔη [m2] | 3,54 | 2,57 | 1,70 | 0,99 | 0,50 | 0,195 | 0,0532 | 0,0006 | 9,55 |
t2mez [m2] | 21,0 | 12,4 | 6,5 | 2,9 | 1,11 | 0,33 | 0,06 | - | Σt2mezΔη |
t2mezΔη | 16,3 | 9,2 | 4,49 | 1,74 | 0,544 | 0,119 | 0,017 | - | 32,41 |
Ala surfaco: | ![]() |
![]() | |
Meza aerodinamika kordo: | ![]() |
La valoro de momanta koeficiento ĉe nula levoforto dependas de t.n. nula dislokiĝo, t.e. de tordo de alo. Oni distingas aerodinamikan tordon, difinitan per reciproka deklino de linioj de mulaj levofortoj de unuopaj profiloj, kaj geometrian tordon dependantan je evoluo de t.n. tunelo laŭ la ala enverguro (fig. 12). Influoj de la aerodinamika kaj la geometria tordoj adiciiĝas. El la evoluo de suma tordo eblas kalkuli (v. tab. 5 kaj fig. 13) angulon de nula levoforto de alo, en nia kazo ĝi estas 10,1°, kio respondas al mezurado de simila prova flugmodelo en aerodinamika tunelo.
Fig. 12: Profiloj kaj ala tordo efike de la tunelo.
Fig. 13: Evoluo de tunela alto kaj de anguloj ĉe nula levoforto de profiloj.
SEKCO | 8 | 7 | 6 | 5 | 4 | 3 | 2 | 1 |
---|---|---|---|---|---|---|---|---|
z[m] | 0 | -0,48 | -0,67 | -0,69 | -0,59 | -0,44 | -0,27 | -0,04 |
t[m] | 5,165 | 3,98 | 2,95 | 2,04 | 1,3 | 0,74 | 0,34 | 0,1 |
![]() | 0 | -0,1205 | -0,227 | -0,338 | -0,453 | 0,595 | -0,795 | -0,4 |
φ° | 0 | -6,9 | -12,8 | -18,7 | -24,4 | -30,8 | -38,4 | -21,8 |
![]() | 0 | + 1,3 | + 1,9 | + 2,0 | + 1,65 | + 1,1 | + 0,56 | + 0,07 |
φ+α° | 0 | -5,6 | -10,9 | -16,7 | -22,75 | -29,7 | -37,84 | -21,73 |
tg(φ+α° | 0 | 0,0981 | 0,1926 | 0,30 | 0,419 | 0,5704 | 0,776 | 0,398 |
zv=ttg(φ+α) | 0 | -0,39 | -0,569 | -0,612 | -0,545 | -0,421 | -0,264 | -0,04 |
Zv, mez | -0,21 | -0,49 | -0,6 | -0,58 | -0,475 | -0,315 | -0,14 | -0,02 |
Δη | 0,775 | 0,745 | 0,69 | 0,6 | 0,49 | 0,36 | 0,28 | 0,03 |
Zv, mez Δη | -0,163 | -0,365 | -0,414 | -0,348 | -0,233 | -0,1135 | -0,0392 | -0,0006 |
ΣZv, mez Δνη | -1,678 | -1,515 | -1,148 | -0,734 | -0,386 | -0,153 | -0,04 | - |
Zνν[m] | + 0,426 | + 0,036 | -0,143 | -0,186 | -0,119 | + 0,023 | + 0,162 | + 0,406 |
Angulo de nula levoforto de alo:
Evoluo de nula dislokiĝo estas difinita per elprovita empiria formulo menciita en tab. 6 kaj montrita en fig. 14. La momanta kurbo de nula dislokiĝo rilate al la akso y estas desegnita sur fig. 15. La elkalkulita momanta koeficiento okaze de nula levoforto pro la sageco efikas stabilige, t.e. direkte al la vosto. Restas ankoraŭ esplori la koeficienton Cma el efikado de la profiloj. Ĉar temas pri profiloj volbitaj, efikas tiu ĉi koeficiento malstabilige, t.e. direkte al la kapo, kio rezultas konklude el la kalkulo en tab. 7 kaj fig. 16. Ĉar la efiko de la tunelo estas pli potenca ol la efiko de la profiloj, la totala koeficiento de momanto Cmo al AC efikas stabilige. Surbaze de la plenumita kalkulo oni povas supozi, ke la elektita deltaalo kun maksimuma tunelalto 700 mm estas fluge stabila.
Fig. 14: Evoluo de nula dislokiĝo.
Fig. 15: Momanta kurbo de nula dislokiĝo sur sageca alo al la kverforta akso.
Fig. 16: Evoluo de Cmo kaj Cmo t2 de profiloj.
SEKCO | 8 | 7 | 6 | 5 | 4 | 3 | 2 | 1 |
---|---|---|---|---|---|---|---|---|
Zνν | + 0,426 | + 0,036 | -0,143 | -0,186 | -0,119 | + 0,023 | + 0,162 | + 0,406 |
Nula dislokiĝo:
Cyot(m) | + 0,678 | + 0,0572 | -0,228 | -0,296 | -0,189 | + 0,0365 | + 0,258 | + 0,645 |
x[m] | 1,29 | 1,77 | 2,28 | 2,75 | 3,2 | 3.56 | 3,81 | 3.97 |
Cy°tx [m2] | + 0,875 | + 0,1015 | -0,52 | -0,815 | -0,605 | + 0,13 | + 0,985 | 2,56 |
(Cy°tx)mez | + 0,45 | -0,21 | -0,71 | -0,75 | -0,26 | + 0,58 | + 1,5 | + 1,3 |
(Cy°tx)mez Δη | + 0,348 | -0,155 | -0,49 | -0,45 | -0,127 | + 0,209 | + 0,42 | + 0,039 |
&Sigma(Cy°tx)mez Δη | -0,205 | -0,553 | -0,398 | + 0,092 | + 0,542 | + 0,669 | + 0,46 | + 0,04 |
Momanta koeficiento pro aerodinamika tordo (sageco):
SEKCO | 8 | 7 | 6 | 5 | 4 | 3 | 2 | 1 |
---|---|---|---|---|---|---|---|---|
Cmo, prof. | 0 | 0,00512 | 0,008 | 0,0083 | 0,00671 | 0,00464 | 0,00256 | 0,00048 |
t2(m2) | 26,6 | 15.85 | 8,7 | 4,15 | 1,69 | 0,548 | 0,116 | 0,01 |
Cmot2 | 0 | 0,081 | 0,0696 | 0,0345 | 0,01135 | 0,00254 | 0,0003 | ~' 0 |
(Cmot2)mez | 0,056 | 0,079 | 0,053 | 0,022 | 0,006 | 0,001 | - | - |
Δη | 0,775 | 0,745 | 0,69 | 0,6 | 0,49 | 0,36 | 0,28 | 0,03 |
(Cmot2)mez Δη | 0,0434 | 0,0589 | 0,0365 | 0,0132 | 0,00294 | 0,00036 | - | - |
ΔΣ(Cmot2)mez Δη | 0,15534 | 0,11194 | 0,05304 | 0,01654 | 0,00334 | 0,0004 | - | - |
Momanta koeficiento de profiloj: | ![]() |
![]() | |
La totola koeficiento de la momanto al AC de alo: | ![]() |
Konkludo: Deltaala pendoglisilo de Rogallo kun fleksebla tegaĵo, kun surfaca ŝarĝo ĉirkaŭ 5 kg/m2, alosvelteco iom plia ol 3, atingas minimuman rapidon ĉirkaŭ 25 ĝis 28km/h, optimuman glisrilatumon 1:4 ĝis 5, minimuman descendivon 2 ĝis 2,5 m/s, maksimuman allaseblan rapidon ĉirkaŭ 60 km/h. Ĝi havas bonajn kvalitojn ĉe deŝiriĝado de flulinioj, ĝi dum tio ne falas laŭ la alo kaj surteriĝas sub nekutime alta incidangulo (ĉirkaŭ 35° ĝis 40°). Ĝi havas maksimuman koeficienton de levoforto de 1 ĝis 1,1. Por alto de la tunelo ĉirkaŭ 700 mm la angulo de nula levoforto estas ĉirkaŭ 8° ĝis 10°. Nur super tiu ĉi valoro ekestas levoforto sur la alo. Se la angulo estas malpli alta, la alo flatras, kio estas tre danĝera flugreĝimo. La deltaalo, se ĝi estas konstrukte solvita kiel la plej disvastigita pendoglisilo, rogallo de la unua generacio, taŭgas por elementa flugtrejnado, dekliva flugado kaj por plenumado de la plej facilaj disciplinoj kiel tempoflugo, ĉirkaŭflugado de ne tro malproksimaj buoj, surteriĝado al celo.
Por plenumado de pli komplikaj flugdisciplinoj, kiel estas altoflugo kaj distancoflugo, hodiaŭ oni uzas pendoglisilojn de la dua kaj la tria generacioj kun rimarkinde pli altaj performancoj koste de plialtigita maso (ĉirkaŭ 30 ĝis 35 kg). Ilia minimuma descendivo estas sub 1 m/s kaj maksimuma glisrilatumo 1:10. Ili estas sekuraj kontraŭ flatro, kio permesis plialtigi la plej altan allaseblan rapidon je 80 ĝis 100 km/h. Iliaj aloj havas trapezan planformon, tordon ĉirkaŭ 6° ĝis 8°, la deflua eĝo de alo estas sekurigata kontraŭ deformado per altiro per kabletoj al la tureto. Per ili oni atingas bonajn performancojn: 200 km de povdistanco kaj 3000 m de povalto, do ili kompareblas kun la unuaj soroplanoj el la 1930-aj jaroj.
(ellaborita de Ing. Jan Pospíšil)
Standardní Rogallovo Křídlo, rogalo, nebo také deltakřídlo je závěsným kluzákem 1. generace. Používá se hlavně pro základní výcvik v podvěsném létání a pro jednodušší disciplíny závěsného létání. Díky pokroku v aerodynamice a technologii výroby větroňů bylo možné vytvořit ultralehké kluzáky, které jsou závěsnými kluzáky 2. a 3. generace. Hmotnost pilota závěsného kluzáku je okolo 80% celkové hmotnosti. Pilot je v kluzáku zavěšen a řídí jej změnou těžiště. Odtud obecnější název a pojem závěsný kluzák.
Tvůrcem tuhého tunelového deltakřídla je dr. A. Lippisch. Američan Rogallo vytvořil tunelové deltakřídlo s flexibilím potahem pro účely návratu kosmických těles.
Rogalo pod menším úhlem náběhu, tj. pod 10°, snadno přechází do nebezpečné fáze letu zvané flutter — třepotání, kdy začíná kluzák padat. Šípovitost rogala bývá od 35° do 45°, plocha křídla okolo 20 m2 hmotnost kluzáku okolo 20 kg, minimálni rychlost okolo 20-30 km/h, maximálni rychlost okolo 60 km/h, minimální klesavost okolo 2-3 m/s.
Rim. de la redaktoro: De prof. Ing. Hanák aperis germanlingvaj artikoloj en la monatrevuo: Prachenfliegermagazin. - Ringier, Buchservice, Wünchen.
Fonto: Scienca Revuo, vol. 35 (1984), n-ro 2 (148). pp. 61-89.
STEB: http://www.eventoj.hu
![]() |